Blog: een eigen stuk grond om een huis op te bouwen
Dit blog is lang. Het is namelijk een beste klus om zelf een huis te bouwen – en dat duurt ook z’n tijd. Nieuwsgierig geworden? Het is nu januari 2026 en dit blog gaat over ons avontuur in 2022, 2023 en 2024. Waarom nu pas een blog? Gewoon, daarom.
Al een paar jaar zeg ik zo nu en dan – als ik weer eens verzonken zit in gedachtes of een gesprek heb met iemand – “ik zou wel ooit ergens willen wonen waar je ‘niks’ aan de achterkant van je tuin hebt. Een bos of weiland ofzo’. Soms moet je wat grotere beslissingen nemen in je leven. Uiteindelijk is deze gedachte werkelijkheid geworden. In 2023 hebben we het druk grond namelijk aangekocht, is de bestemming veranderd van ‘agrarisch’ naar ‘wonen’ en in oktober van dat jaar is de bouw gestart. Heel onwerkelijk. En als klap op de vuurpijl gaat onze aannemer in maart 2024 failliet en zit er nog niet eens een dak op het huis in aanbouw. Dat is slikken. Ik heb in m’n leven al zo vaak die programma’s gekeken op tv en dan gaat er vanalles fout. Onwerkelijk, nietwaar? In dit blog neem ik je mee in het hele traject. Met uiteindelijk een geweldig huis op een geweldige plek, waarin ik veel met de blote handen heb aangeraakt en heb gedaan.
De droomkavel die te koop bleek
Ik rij best veel auto. En dan rij ik niet altijd precies dezelfde weg naar huis, maar soms kies ik een afslag verder, of eentje eerder. Of rij ik een stukje om. Het moet niet allemaal altijd hetzelfde zijn, vind ik dan. Zo op de Slek (Midden Limburg, kern van de gemeente Echt-Susteren) zijn er best mooie straten en liggen er ook best charmante huizen. De ene meer dan de ander, maar dat heb je overal. Toen ik een paar jaar geleden in de auto zat met Lea naast me, zei ik: “kijk dit stuk grond vind ik mooi”. Een weiland met hoog gras en schapen erop. Met aan de achterkant een prachtig uitzicht op akkers en daarachter een bos. Het begin van natuurgebied “De Doort” – waar mensen van heinde en verre kleine boomkikkers komen kijken.
Niks is toeval in het leven. Of wel. Geen idee. De kinderopvang van Jolijntje is net open gegaan in het jaar dat ze is geboren. Het is lente 2022. De opvang vindt het een goed plan om een open dag te organiseren en daar gaan wij als kersverse ouders natuurlijk naartoe. Lekker met onze bakfiets. Het is wel een eind fietsen, maar dan heb je ook wat. We zitten aan de koffie en ik zie een bekende binnenkomen – het is m’n neef met zijn vriendin en zoontje. Het gesprek gaat uiteindelijk ongeveer zo: “Er wordt van allerlei grond verkocht op de Slek. Oh echt? Toevallig ook dat stuk? Ja, dat ook. Dat meen je niet! Jawel.” Als we huiswaarts gaan, zijn we enthousiast. We zijn er namelijk achter gekomen dat het stuk grond dat we mooi vinden, misschien wel in de verkoop gaat.
Niet veel later bel ik met m’n oom en met de makelaar die het stuk grond verkoopt. We zijn erg geïnteresseerd en doen binnen twee weken een bod. Het is op een vrijdag in de middag dat ik een teamuitje heb in Den Bosch. In de trein terug word ik gebeld door de makelaar dat ons bod is geaccepteerd. Huh? Geweldig!




Geen varkensfokkerij!
Het is nog erg onwerkelijk allemaal. We hebben een geaccepteerd bod liggen op een stuk grond met agrarische bestemming, maar willen natuurlijk een huis gaan bouwen. Welke stappen moeten we zetten om een woonbestemming te krijgen? Hoe regelen we de financiering hiervan, aangezien waarschijnlijk de koop van de grond veel eerder moet gebeuren voordat de bouw start? Wat gaat dit alles kosten? Wanneer heb je een aannemer nodig? Allemaal vragen die spelen, en die we stuk voor stuk beantwoorden. Waarbij het erg helpt dat Lea al een keer een huis heeft gebouwd in haar leven en we goed eensgezindheid de dingen aanpakken en ons vooral niet gek laten maken.
De eerste stap is in elk geval om de bestemming te (laten) wijzigen. Nooit eerder gedaan en ook echt geen idee hoe zoiets werkt. Intussen heb ik regelmatig contact met een mevrouw van de gemeente die me vertelt wat er allemaal moet gebeuren. Het zogenaamde wijzigingsplan is belangrijk, maar een principeverzoek is een eerste stap die handig is om te zetten. Hiermee vraag je de gemeente vooraf of het wel zin heeft een wijzigingsverzoek in te dienen. Kosten: 160 euro, maar die krijg je ooit weer terug als er grote vergunningen worden verleend. Ons principeverzoek wordt goedgekeurd – jippie!
In juni (het is 2022) maken we ook een afspraak met een meneer die huizen ontwerpt. De architect. Op internet heb ik een huis gevonden dat ik erg mooi vind. Lea vindt het ook mooi, dus dat scheelt. Het is een villa die na navraag helemaal nergens is gebouwd. Maar dat maakt niet. De stijl is Kempisch – een architectuurstijl die z’n oorsprong vindt in het Belgische Kempen. In Nederland wordt deze stijl als een nieuw genre beschouwd. Bekend om het gebruik van natuurlijke materialen, afgeronde ornamenten, het gebruik van oude materialen als balken, blauwgesmoorde pannen, houten kozijnen en specifieke dakkapellen. Het bevalt ons wel en op een mooie zonnige middag krijgen we de eerste schetsen te zien. In één woord: geweldig. Waarbij het hele pakken van ‘eisen’ en ‘wensen’ dat we eerder hebben besproken, is verwerkt. Alleen: deze tekeningen zijn mooi, maar helpen ons niet aan een goedgekeurde wijziging van de bestemming. Dus het wordt echt tijd daar werk van te maken. Het is puzzelen hoe we een wijzigingsplan gaan krijgen, en spreken toevallig na een avondje ouderwets ‘schitzel eten’ in het dorp een jongen die in volledig eigen beheer zijn huis bouwt. Ook hij heeft jaren geleden de bestemming laten wijzigingen en helpt ons goed op weg. Een dag later bel ik met een aardige Brabander met eigen juridisch kantoor en vraag hem of hij ons wil helpen. En dat wil hij, waarbij ik er inmiddels wel achter ben dat het wijzigingsplan voor 1 september ingediend moet zijn bij de gemeente. Vanaf 1 januari verandert namelijk de Omgevingswet en daarmee ook de manier waarop bestemmingsplanwijzigingen worden aangevraagd en afgewikkeld. Het is alleen op dat moment begin juli en de zomervakantie staat voor de deur. Je hoeft er niet voor gestudeerd te hebben – onze tijdslijnen zijn gewoonweg ambitieus. Ook omdat er nog de nodige onderzoeken uitgevoerd moeten worden.
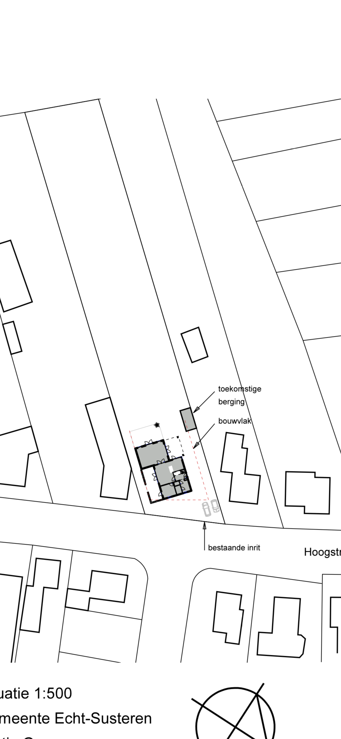
Bestemmingsplan wijziging naar ‘wonen’. In de basis moet een plan worden opgesteld, waarin wordt beschreven welk soort woning er wordt gebouwd en om hoeveel woningen het gaat. Dit plan moet worden ingediend bij de gemeente. Belangrijk daarbij is dat het moet voldoen aan de eisen die worden gesteld in het bestemmingsplan en de geldende wet- en regelgeving. Deze zijn er op gemeentelijk, provinciaal en landelijk niveau. Als het plan binnen het beleid van de gemeente past en er geen bezwaren zijn vanuit de omgeving (omwonenden), dan kan de gemeente het bestemmingsplan wijzigen. Dit ‘plan’ is letterlijk een dik document met alles uitgelegd. Vergezeld met uitkomsten van verschillende onderzoeken die verplicht zijn, zoals een bodemonderzoek, flora- en fauna onderzoek en geluidsonderzoek. Een archeologisch onderzoek is in ons geval niet nodig. Ook wordt er op de tekening van het perceel aangegeven waar het bouwvak ligt, met uiteraard de afmetingen en de voorgevelrooilijn.
Intussen stelt de mevrouw van de gemeente een zogenaamde anterieure exploitatieovereenkomst op. Een geweldig woord voor een document waarin we met de gemeente de afspraken van de intentiefase vastleggen. In principe geen gek ding, waarbij wel het oog valt op wat heet het Gemeentelijk Kwaliteitsmenu. Mocht je zelf een bestemming willen veranderen, let hier dan goed op, want dit kan in de ‘papieren’ gaan lopen. In deze weken worden ook alle onderzoeken uitgevoerd, die nodig zijn voor het wijzigingsplan. Alexander – de Brabantse meneer – levert ons het eerste concept aan dat we in oktober definitief maken en indienen bij de gemeente. Nu is het wachten tot het college ons verzoek behandelt en hopelijk goedkeurt. We zitten op dat moment niet stil en in november tekenen we de koopovereenkomst van de grond. Met wel een voorwaarde erin dat we alleen het stuk grond kopen als de gemeente akkoord is met een bestemming ‘wonen’. Want ja, wij hebben niet de droom een varkensfokkerij of zoiets te beginnen. Al is dat misschien wel lucratief om te beginnen. Dan start ik er eentje en laat me daarna door de overheid uitlopen in verband met het stikstofbeleid.
Intussen zijn we al aan de tuin begonnen.






Gevraagd: doorzettingsvermogen
Op 26 april (2023) dienen we de aanvraag voor de omgevingsvergunning in. De bestektekeningen zijn dan definitief en daarvoor zat er wat werk met onze aannemer. Tekenen is namelijk leuk, maar uiteindelijk wil je ook weten wat het huis in die uitvoering kost. En dan heb je ook weer een constructeur nodig en moet er een zogenaamd sonderingsonderzoek zijn uitgevoerd. Dit is een bodemonderzoek waarmee je informatie krijgt over de bodemopbouw, draagkracht en grondlagen. Handig en nodig voor het bepalen van de fundering.
Champagne. Het indienen gaat voor elke Nederlander via het online portaal maar je moet zoveel dingen aangeven, niet normaal. De dinsdag erop krijgen we een brief – dat gaat snel. Dat de aanvraag is ingediend, men wettelijk 10 weken tijd heeft om de beslissing op te maken, maar dat het druk is en het erg waarschijnlijk is dat de termijn met de wettelijke 6 weken wordt verlengd. De dag erna krijgen we dezelfde brief – zo weet de gemeente zeker dat we van die extra zes weken af weten. En daarna… daarna is het zo’n 9 weken radiostilte. Totdat we zelf maar eens gaan bellen om de status op te vragen. En dat is blijkbaar geen gemakkelijke vraag, want die status is onduidelijk. Dus bellen we gewoon nog een keer. Waarbij de mevrouw van de omgevingsdienst ons gewoon de verbinding verbreekt. De tijd daarna is er eentje met veel onduidelijkheid en frustratie. Zo heeft men de geweldige procedure om pas tegen het einde van de termijnen terug te koppelen of alle benodigde informatie is ingediend. En dat blijkt niet het geval te zijn, want men mist een geluidsberekening van de warmtepomp, een checklist veilig bouwen en een geluidsonderzoek voor de voorgevel. Laat staan dat er nog een zogenaamde kruimelprocedure loopt bij de gemeente omdat we ons huis iets ‘scheef’ ten opzichte van de perceelrooilijn willen bouwen. Met flink wat geduld krijgen we een dag voordat de aanvraagtermijn afloopt – uiteraard 10 + 6 extra weken – een telefoontje: de vergunning is verleend! We kunnen door:op naar de bouw.

De bouw begint!
Op maandag 2 oktober 2023 start onze bouw! Als eerste met het grondwerk, al waren de paaltjes en alles al de weken ervoor uitgezet (net als het peil). Voor de muren wordt eerst de fundering gestort, waarop de eerste stenen worden gemetseld. Binnenmuur, folie, tempex en de buitenmuur. Dan volgt de installateur met riolering, warm en koud waterleidingen, leidingen voor de warmte-installatie en de eerste elektriciteit. Op een zaterdag halverwege oktober leggen we met een paar man tempex. Bedoeling is dat we grote platen als ‘vloer’ leggen. Dat betekent passen en meten en zagen – er staan immers als buiten- en binnen muren. Het is een leuke klus die binnen een paar uur is gepiept. De week erop worden eerst grote, blauwe pijpen aangelegd voor de wtw-installatie en daarna wordt de fundering gestort over de tempex heen. Ofja, er liggen ook staalmatten en bakstenen in.
Het is nog lekker weer in deze tijd van het jaar en we schaffen een paar sierperen aan. Lea wilde die al langer graag hebben en we kopen ze bij tuincentrum Velden. Al was ons plan ze ergens anders te halen (in de Achterhoek), maar daar hadden ze ze niet in de pot en de jongeman van het centrum flipte zowat de pan uit.
Op 1 november arriveren de kozijnen en die worden in deze week gesteld. Dit houdt in dat ze op de plaats gezet worden, waarbij houten latten ze precies op de juiste plaats houden. Ook de stenen van Wienerberger voor de binnenmuren arriveren. Het begint nu echt wat te worden. De muren worden uitgezet met houten plaatjes en de eerste muren worden gemetseld. Ook arriveert de grote betonmixer – want ja zonder specie kan er niet gemetseld worden. Halverwege november staan alle kozijnen en de binnenmuren voor de helft overeind. Het is leuk om via de voordeur naar binnen te lopen en een rondje door het huis te maken.







In week vijf van 2024 komen de breedplaatvloeren van de zolder erop en iets verderop in de week wordt het beton gestort. Cool. De eerste week van februari is vooral een metselweek. De voorgevel wordt opgetrokken en ook de andere muren van het huis. Er is wat puzzelwerk nodig omdat de architect niet goed genoeg rekening heeft gehouden met de maten van de pannen en de dakkapellen die we krijgen. Er zijn wat opties en Lea beslist daarover als ik op kantoor ben. Prima. Op vrijdag trakteren we de metselaars op een lekker frietje! Er blijkt toch een frituur open te zijn om 12 uur ‘s middags dus die krijgt de verdiensten. Vastelaoveszaterdag rijden we met een ietwat zieke Jolijn naar Giessenburg. Hier ligt de zogenaamde ‘graanschuur’: een brocante winkel met van allerhande lampen. We tikken een geweldige lamp op de kop die boven onze voordeur komt te hangen. Van Aldo Bernardi, een Italiaanse ontwerper.
De eerste weken van februari zitten er alweer op en er wordt hard doorgewerkt aan ons mooie huis! Zo zit de zolder er op en is van alle leidingen die op deze verdieping aanwezig zijn, niks meer te zien. Die liggen inmiddels veilig opgesloten in het beton. Ook is er behoorlijk gemetseld. De gevels zijn verder opgetrokken en versieringen zijn hier en daar ook al zichtbaar. Van die ‘trappetjes’ waar het schuine dak begint. Daar bestaat vast en zeker een mooie naam voor, maar die kennen wij (nog) niet. Deze week hebben we ook alle binnendeuren uitgezocht. Elf stuks in totaal, plus nog eens een dubbele taatsdeur die tussen de keuken en woonkamer komt en een enkele taatsdeur vanuit de hal naar de keuken. Cool hè: Het is echt leuk de voortgang te zien en we sluipen dan ook geregeld ons nieuwe huis binnen om nieuwsgierig te kijken hoe alles eruit ziet en voelt. Ook zijn inmiddels de eerste dakspanten geplaatst en wordt meer en meer zichtbaar hoe het dak er straks uit komt te zien. Vandaag was verder nog erg bijzonder, want de grote, robuuste eiken balken zijn geplaatst aan de achterkant van het huis. Die omlijst de openslaande deuren in de woonkamer en de grote raampartij op de grootste slaapkamer erboven. Geweldig om te zien en wat een vakmanschap!





Het faillissement
Begin maart begint het lekkere weer en wij zijn druk met vanalles en nog wat in de tuin. Zo kopen we vijf oude perenbomen net achter Nijmegen en is project ‘eerste border’ een feit. De metselaars gaan ook behoorlijk door en in de tweede week staan er al twee schoorstenen op. De maandag valt in duigen want het regent de hele dag. Intussen maken Lea en ik nog een nieuwe border aan de linkerkant totdat tegen het einde van de middag een telefoontje komt. “Bart, ik heb vandaag het faillissement van Beijers Bouw aangevraagd”. Wat?! Op dat moment komen alle emoties door elkaar langs. In de avond kopen we op de valreep bij de Gamma een groot hangslot en een bordje ‘verboden voor onbevoegden’. We parkeren een van de twee auto’s pontificaal voor het hek zodat er niemand bij komt. Inmiddels zwelt de buikpijn aan.
We slapen die nacht bijna niet. Geen aannemer meer en een huis zonder dak… ongelofelijk. De dinsdag werkt ik nog een uur en neem dan vrij. Mijn hoofd staat er totaal niet naar. We bellen ons suf naar onderaannemers om te vragen of ze ons willen helpen, wat voor spullen er zijn geleverd en ook of ze hun factuur betaald hebben gekregen. In de middag geef ik nog een presentatie voor het werk en daarna komt een aardige man naar de kavel die ons goed advies geeft. En ook aangeeft te willen helpen met het afbouwen van delen van ons huis. Tegen het einde van de week heb ik er een paar verlofdagen op zitten. De contouren van onze doorstart zijn steeds meer zichtbaar en het vertrouwen groeit dat we dit zelf kunnen afmaken. Alleen missen we nog een metselaar – en laten we die nu net als eerste nodig hebben.
Inmiddels weet ik ook vanalles af qua bouwen van een huis. Ofja: het afmaken van een huis dat nog geen dak heeft. Eerst moet het metselwerk af plus dakkapellen. Dan moet de voeger wat voegwerk doen aan de schoorstenen en waar de tweede delen ‘huis’ tegen elkaar aan komen. Dan is het tijd voor het slaan van de dakplaten. En daarna de boeiborden, bovendakse gevels, waarna het zinkwerk kan gebeuren. En daarna zal de overkapping geplaatst moeten worden voordat de pannen erop komen! En als dat af is is het tijd voor de dorpels en vensterbanken aan de buitenkant. Daarna komt de installateur voor de vloerverwarming wat wordt vervolgd door een cementdekvloer. We gaan dit allemaal regelen maar natuurlijk wel met een goede begroting. Want ja, we willen koste wat kost voorkomen dat we een financiële tegenvaller hebben door dit faillissement.
Bijna een week na het bericht van de aannemer zitten we aan tafel met de curator. Om te onderhandelen over de situatie. Er zijn deuren voor ons, en sommige materialen zijn geleverd maar niet betaald. We komen tot een deal die iets later die week definitief wordt. De aannemersovereenkomst wordt officieel ontbonden – we hebben nu officieel geen aannemer meer. Net alsof je 130 rijdt op de snelweg, de instructeur opeens de auto verlaat en je het rijbewijs nog niet hebt gehaald. Maar goed. Intussen hebben we de afspraak gemaakt dat volgende week het metselwerk wordt opgepakt en de week erna het dak erop gaat. De week erna wordt de overkapping getimmerd en de week daarna gaan de pannen er op. En intussen maak ik de planning voor het werk binnen. Het wordt nog goed plannen om zo min mogelijk tijd te verliezen vanaf het moment dat de vloerverwarming erin gaat tot dat de tegels worden gelegd en de meterkast het doet.
Het is een week als geen ander. Veel emoties, veel geregel en lange dagen. En intussen is nog niet alles geregeld, want de CAR-vergunning is er ook nog niet. Zo’n vergunning verzekert tegen schade en ongevallen op een bouwproject, waar nog geen normale verzekeringen op zijn afgesloten. Ook dat is belangrijk en je krijgt een hoop te regelen bij zo’n faillissement. Potverdorie zeg.

De doorstart
Het is inmiddels vijf weken na het faillissement en vier weken na de deal met de curator. Het is half april (2024) en we hebben de eerste twee bbq’s op de kavel achter de rug. Maar: er zijn ook bakken met regen gevallen. Maar buiten dit alles: het gaat goed met de bouw! Als eerste zijn de nieuwe metselaars gekomen en hebben in een dikke week de ontbrekende gevels en schoorstenen gemetseld. Yes. De week erna staat een ploeg klaar met kraanwagen en worden in twee dagen alle dakplaten op het huis gelegd. Yes! De topgevels worden afgetimmerd met betonplex en de boeiborden komen er tegenaan. En ook heel mooi is dat onze eiken overkapping staat. Op mooie hardstenen voeten. Het is een aardige joekel qua overkapping – hier gaan we zeker weten flink wat tijd onder vertoeven. Ook zit het zinkwerk op het dak. Op de topgevels en goten die onder de pannen aan de zijkanten worden gemaakt. En… drie van de vier daken hebben al een pannendak, de dakkapellen zijn opgemetseld en de regenpijpen hangen. We zijn er heel erg trots op, met dank aan veel mensen!
Van buiten naar binnen
Zo begin mei (2024) ziet het huis er al uit als een echt huis. De voeger is ook een paar keer gekomen. Lea trakteert ze op een ijsje en in de avond zien we dat de verpakkingen gewoon ergens neer zijn gegooid. Ook is het voor de rest weer een flinke puinbak op de bouw. Binnen ligt er overal vanalles. Het is een dik stofnest en we moeten eigenlijk zo’n Darth Vader kap ophebben als er geveegd wordt. Ook buiten is het kermis. Hout, schroeven, zink, piepschuim, plastic bandjes, kapotte bakstenen, kapotte binnenstenen, plastic, beton, en ga zo door. We struinen zo nu en dan in de avonduren de bouw af en ruimen op wat we tegen komen. Het is nog even gesteggel tussen de voeger en dakmeneer. Want het regent, er missen hier en daar pannen en de regenpijpen zijn nog niet geïnstalleerd. Dus de stenen worden nat en met te natte stenen is voegen not done. Je krijgt dan namelijk verschillende kleuren voeg en dat wil je niet. Binnen wordt er flink doorgewerkt: de zogenaamde ‘hakker’ is een paar keer geweest en is – inderdaad – komen hakken. Inmiddels lopen de elektriciteitspijpen door het huis, zitten de buizen van de wtw-installatie in de muur en zijn de inbouwreservoirs van de wc’s geplaatst. Ook is het huis voor een groot deel afgevoegd. Met een flinke tip om de ramen en kozijnen af te dekken als de mannen komen voegen. Want het voegsel ligt overal en als het glas erin gaat is het poetsen, poetsen en nog eens poetsen.
In de tweede week van juli (2024) is de stukadoor klaar. Het stucwerk binnen zit er super strak in en intussen is het hopen dat de cementdekvloer droog genoeg is omdat de vloertegels erin moeten. Doordat er wordt gestuct is de vloer afgedekt en daardoor kan de vloer niet goed ademen. Gelukkig komt het goed – zoals altijd – en is alles op tijd droog genoeg. Op dinsdag komt de tegelzetter (met vier man sterk) en drie dagen later ligt de hele vloer op de onderverdieping erin en is deze gevoegd. Ook is de wc onder betegeld. Geweldig. In het weekend is het dan eindelijk zo ver voor Lea: ze gaat zelf een muurtje tegelen met 10×10 geglazuurde gebakken tegeltjes. En tegen dit mooie muurtje komt uiteindelijk onze beste implusaankoop ooit te staan: het elektrische haardje. De week erop – tweede week van juli – maakt de stukadoor de cementplint buiten af, waardoor het huis bijna klaar is aan de buitenkant. En binnen nemen we zelf de eerste kamers onder handen. De slaapkamer van Jolijn wordt als eerste ververfd en ik behang twee muren. Het is nog een goede zoektocht om de kleur van de muren en plafond uit te kiezen. Uiteindelijk hakken we de knoop door; het wordt een Flexa kleur en wel Gentle Stone. En voor ik het vergeet: we beslissen ook nog even tussendoor om op de zolder laminaat te leggen, zodat we het ook daar direct netjes hebben. Alleen hebben we daar geen cementdekvloer laten storten. Maar met een kapkamer, handveger en blik kom je een heel eind om de vloer waar nodig te egaliseren. Binnen een drie dagen ligt de vloer netjes op de zolder. Mooi zo.
Het is tijd voor de schilder en die komt verf spuiten. Het is een heel leuke gast en hij is wel een dikke twee weken aan de gang. Intussen heb ik wat extra verlofdagen opgenomen. De kinderopvang is twee weken dicht (ze denken dat alle ouders die twee weken vakantie hebben…) en na die week rammen we op dinsdag en woensdag de hele voortuin erin. Als ‘luie tuinders’ eerst karton waar vervolgens zo’n 40 kruiwagens zand op worden geschept. Ik voel de blaren nog op m’n handen. We hebben drie grote witte bakken staan van aluminium en die zet ik waterpas en uitgemeten op de voorgevel van ons huis. De oude peren staan al klaar en worden erin getild. Om het geheel af te maken met een extra 25 kruiwagens zand. De berg achter is behoorlijk geslonken. Tegen het einde van de week komt er een nieuwe lading Ekoboard binnen (Google maar eens) en die leggen we er op vrijdagavond in. Tegen de gemeentegrens leg ik van die antraciete stapelblokken in het donker – de dagen worden helaas al wat korter. In het donker ziet het er allemaal prima recht uit, maar de ochtend erop zie ik dat het schots en scheef ligt. Er zit niks anders op: alles er uit en alles er weer in. Recht dit keer. Maar al met al zijn we super trots dat we dit niet alleen zelf hebben gemaakt, maar ook in zo’n korte tijd. Ons nieuwe huis ligt aan een redelijk drukke weg en we krijgen veel bijkijks van mensen die langs lopen, fietsen en rijden. Leuk.
En voor ik het vergeet. Onze woonkamer is ook al goed gevuld. De nieuwe bank staat er in en in ons oude huis zitten we inmiddels op de tuinbank. Want de oude bank (die nog best nieuw was met 2 jaar op de teller) is ook al verkocht: aan een stel Belgische dierenartsen. Het haardje staat erin, de mooie designlamp hangt boven de eetkamertafel en de nieuwe Scandinavische stoelen staan er aan. En de koraalkleurige keuken staat inmiddels ook op z’n plek. Die is half juli geplaatst. De eiken overkapping gebruiken we ook al elke dag. We hebben een tijd terug zelf een buitentafel in elkaar geklust. Hup – naar de houthandel waar we vier douglas planken laten zagen van drie meter lang.









Final!
Spullen omhuizen, lampen hangen, laminaat leggen en plinten kitten. Over twee weken moeten we ons oude huis uit, dus de deadline is hard. Met die twee weken voor de boeg breng ik een aantal avonden tot diep in de nacht door op de bovenverdieping. Totdat ik vijf planken laminaat fout zaag en het tijd is om het bed in te duiken. Maandag 19 augustus (2024) staat ons bed in de nieuwe slaapkamer en slepen we in de ochtend ons matras erin. Het bed van Jolijn schroef ik uit elkaar en weer in elkaar op haar nieuwe slaapkamer. Het bed van Fijs zo na het avondeten en dan is het eindelijk zo ver. We zijn ‘om’ en wonen in ons nieuwe huis. Het voelt lekker, de kindjes slapen lekker en ik ook als een blok. Lea helaas wat minder – ze heeft last van haar benen. In de dagen die volgen is het een aan- en afrijden met spullen. De kinderkamers in het oude huis zijn helemaal leeg, de grote dingen (op een kast na) zijn ook om. En dan is het tijd om de zolder leeg te maken.
De afgelopen maanden waren behoorlijk intensief. Van alles regelen, onduidelijkheid en intussen puin ruimen en flink de handen uit de mouwen steken. Nu is de druk anders, want ons oude huis moet simpelweg leeg. Er er staat zo ontzettend veel in. Ik heb het aantal aanhangers niet geteld, maar het zijn er veel. Laat staan de wat moeilijkere sjouwwerken, zoals de eikenhouten kast bij Fijs op de kamer (ooit door m’n ouders gekocht) en de stalen servieskast met glazen deuren. Samen met Paultje rij ik wel 6x heen en weer met alleen een aanhanger vol kleren. Jeetje. De inbouwkast boven is nog niet klaar, dus we gebruiken onze vierde slaapkamer tijdelijk als opslagruimte. Het is fijn dat de deur dicht kan. En voor dat moment flans ik in een uurtje de laatste stukjes laminaat erin, zaag de plinten op maat en kit ze vast tegen de muur. Kleine dingen, maar belangrijk om te doen. Beneden krijgt onze hal vorm met wel zes opbergkasten. Lea lakt de groene deuren in dezelfde Gentle Stone kleur die we door het hele huis hebben. De hal is als een van de eerste dingen klaar en ziet er prachtig uit. Intussen is het ook bouwvak en gebeurt er qua werk niks. Terwijl we onder nog geen wc hebben, de warmtepomp het nog niet doet en de elektricien nog niet klaar is. Na de bouwvak en een lekkere vakantie in Spanje wordt dit allemaal geregeld en is het meeste zo goed al klaar.
Het is nu september (2024) en we bezitten nog maar één huis: ons nieuwe huis. Geweldig. Gestart met het kopen van een weiland in de lente van 2022 om na lang regelwerk met de gemeente te starten met de bouw in oktober 2023. De aannemer die in maart 2024 failliet gaat en wij die – met veel hulp van anderen – ons droomhuis in eigen beheer afbouwen en intussen de hele tuin onder handen nemen, de bouw netjes houden met twee kleine kindjes en drukke banen. Het is ons gelukt. We hebben doorgezet en hard gewerkt. Hard geregeld en ook veel plezier en mooie momenten gehad. Het was het waard en nu is het tijd van dit prachtige huis te gaan genieten. Waarbij er ongetwijfeld bezig blijven met onze tuin, het bouwen van een grote schuur en dingen die nog moeten gebeuren. Maar dat houdt het leven levendig, is gewoonweg leuk en je leert er veel van. Ik ben intussen in te huren als aannemer. Maar niet heus.




